PROGETTI
COMMERCIALE
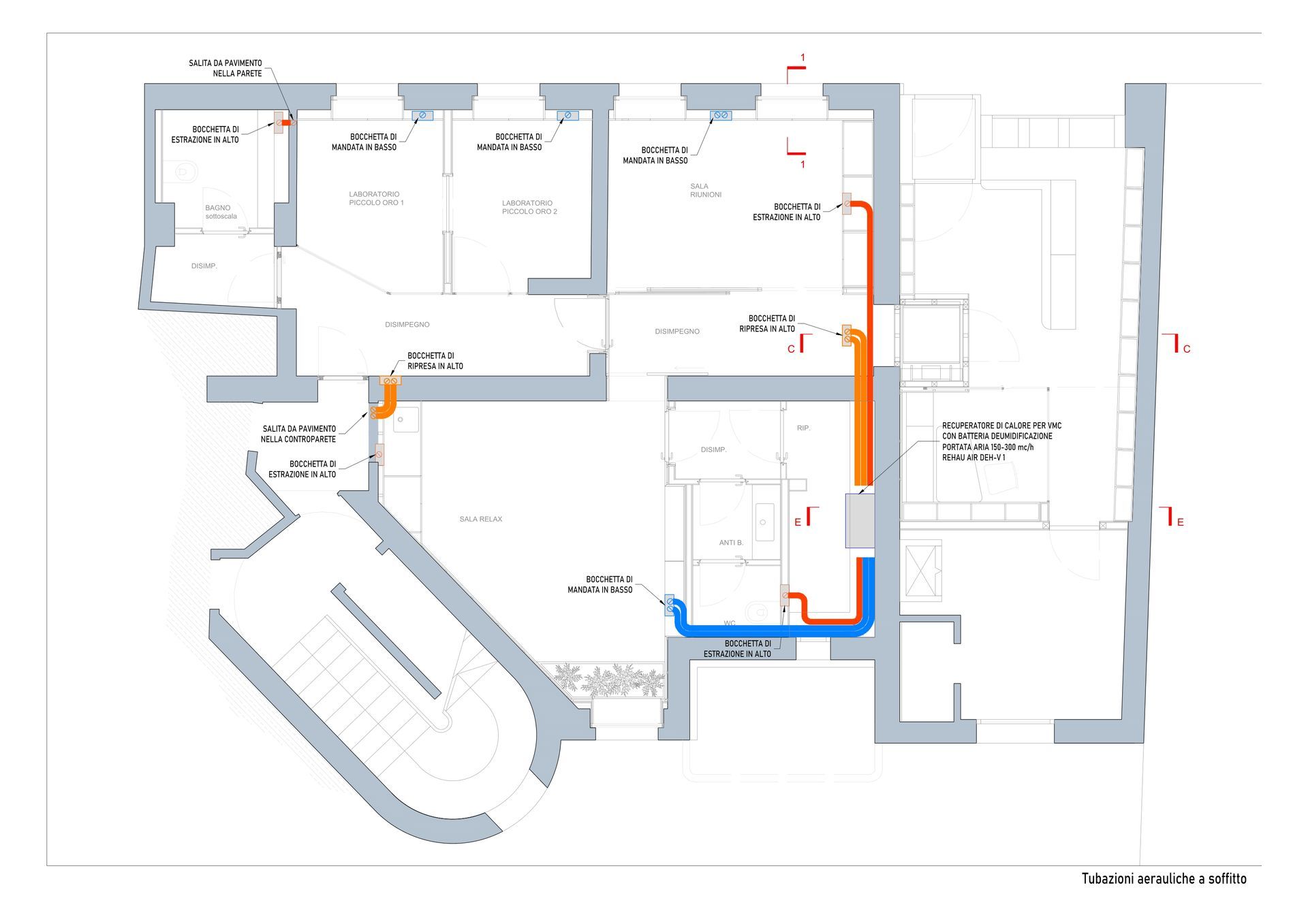
Gioielleria a Udine
Progetto degli impianti di climatizzazione, idrico e scarichi per locali di vendita e di servizio
Collaborazioni: arch. Enrico Franzolini
Sede operativa: 101 Via Cividina - 33100 Udine
Sede legale: 10 Via Branco - 33010 Tavagnacco (UD)
bulfon.ingegneria@gmail.com
+39 389 343 5629
Site designer Bulfon Paolo
PROGETTI
COMMERCIALE
Gioielleria a Udine
Progetto degli impianti di climatizzazione, idrico e scarichi per locali di vendita e di servizio
Collaborazioni: arch. Enrico Franzolini